新聞動態
136 3291 9686
手機: 13632919686
郵箱:szzyal@szzyal.com
QQ:29210625
地址:深圳市龍崗大運新城榮超金融大廈19層/肇慶高新區亞鋁大街東
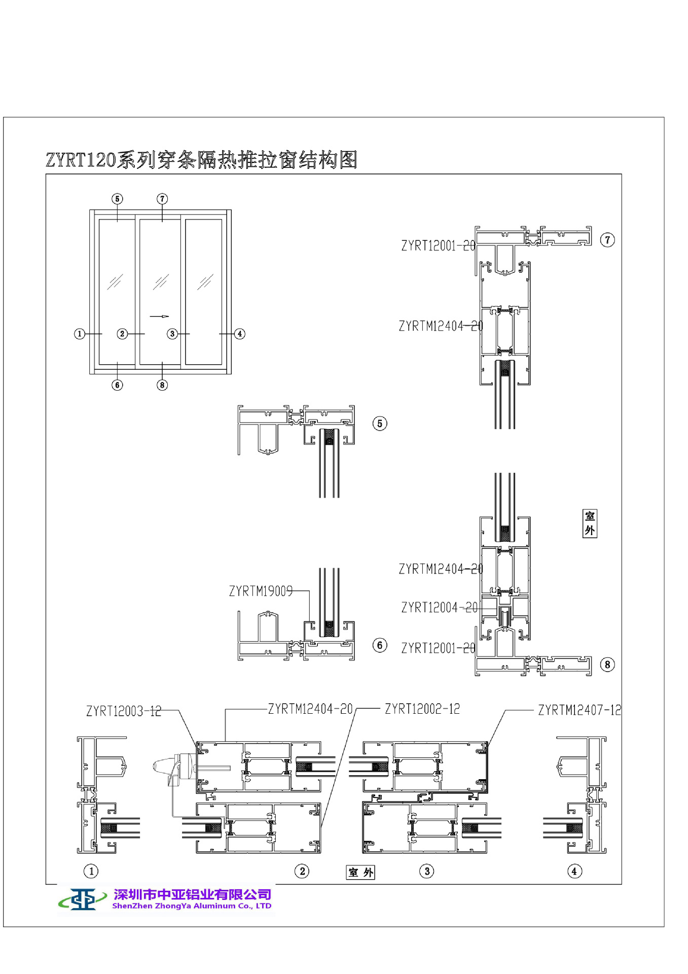
ZYRT120系列穿條隔熱推拉窗鋁型材
發布時間:2020-02-25 14:24:26


【加工流程】




【生產設備】
500噸-3600噸擠壓機35臺,粉末/氟碳噴涂線7條,氧化電泳車間2間,深加工車間,模具中心,質量檢測中心;環保節能熔鑄爐,鋁棒均質爐,長錠剪機,雙牽引機,拋光機,打砂機等新型設備。
【加工工藝】
陽極氧化著色,電泳涂漆,粉末噴涂,有電拋光、機械拋光、氟碳噴涂、木紋噴涂、穿條隔熱,深加工,精加工等;
【聯系方式】
公司名:深圳市中亞鋁業有限公司
聯系人:方先生
電 話:86 0755 89554859
手 機:13632919686
傳 真:86 0755 89554659
地 址:中國廣東深圳市龍崗區中心城龍翔大道儷景中心16F
主 頁:http://www.szzyal.com
http://www.szzyal.cn
中亞鋁業致力于產品質量的研發與追求,產品質量是我們對每一位客戶的保證。無論是高端的現代化大樓、商住建筑,還是普遍的民用門窗、工業型材,我司都很好地做到:將各個層次的鋁型材合乎其客戶所需,為客戶提供具成本競爭優勢的高品質型材!
歡迎索取我司門窗、幕墻型材圖冊,氧化電泳色板圖冊。
歡迎國內外用戶來函、來電、來人訂貨,來樣、來圖訂造。
中亞鋁業恭候著您的光臨!

